Monteren nieuwe voorveer
-
bobrockland71
- Posts: 174
- Joined: 19 Oct 2012, 17:30
Monteren nieuwe voorveer
Fulvisti,
Zijn er nog speciale instructies voor het monteren van een nieuwe voorveer? Gewoon erop zetten en met die 4 boutjes (van boven) erin draaien werkte bij mij niet: 2 bouten draaide ik de schroefdraad van stuk.
Op zich logisch. Is nogal sterk zo'n veer in het midden zeker. Moet je hem eerst wat op spanning brengen (beetje plat maken)?
groet
Bob
Zijn er nog speciale instructies voor het monteren van een nieuwe voorveer? Gewoon erop zetten en met die 4 boutjes (van boven) erin draaien werkte bij mij niet: 2 bouten draaide ik de schroefdraad van stuk.
Op zich logisch. Is nogal sterk zo'n veer in het midden zeker. Moet je hem eerst wat op spanning brengen (beetje plat maken)?
groet
Bob
Re: Monteren nieuwe voorveer
Zie DT. Fulv. 07/0020
Daar heb je trouwens weinig aan want je hebt je draagarmen er waarschijnlijk nog niet aan en bovendien meet je bij S1 de afstand tussen de onderste draagarm en de rubber stootbuffer en dan maakt het uit hoe lang het rubber is tussen veer en bovenste draagarm.
In de praktijk komt het er op neer dat je de veer volledig recht dwz horizontaal moet hebben.
Daar heb je trouwens weinig aan want je hebt je draagarmen er waarschijnlijk nog niet aan en bovendien meet je bij S1 de afstand tussen de onderste draagarm en de rubber stootbuffer en dan maakt het uit hoe lang het rubber is tussen veer en bovenste draagarm.
In de praktijk komt het er op neer dat je de veer volledig recht dwz horizontaal moet hebben.
-
Bert Ewalds
- Posts: 247
- Joined: 22 Dec 2008, 00:13
Re: Monteren nieuwe voorveer
Huib heeft natuurlijk gelijk, maar is in deze wel wat streng en beschrijft de koninklijke weg.
Die veer horizontaal spannen, daar heb je wel een bonk ijzer voor nodig, en dan nog! (zie 2e foto)
Als je goed kijkt zie je da tik hem slechts aan 1 kant horizontaal had, zelfs met die vijzel draadeinden durfde ik niet verder te gaan
Maar het kan ook eenvoudiger.
Je hangt die veer op met die stalen bak en de 4 bouten, draait de bouten niet te vast aan
Uiteindelijk komen ze op 25 Nm, en daar moet je dus duidelijk ver onder bliven.
Je kiest je nieuwe buffers, die tussen de bladveer en de bovenste draagarm komen, er is een Oostenrijker die betere kwaliteit buffers verkoopt dan de dingen die standaard in de handel zijn, hij heeft ze zoals Huib stelt in verschillende lengtes, voor normaal gebruik is denk ik de beste gok de standaard lengte.
Je spant de veer aan 1 kant op met zelfgemaakte spannners, zie foto, ik had M-12 draadeinden, zou ze de volgende keer nog wat dikker nemen.
Probleem is, zoals je op de foto ziet, dat de uiteinden van de veer toch nog doorbuigen, maar je krijgt de buffers met wat moeite toch wel tussen de veer en de bovenste draagarm. Moeren van de buffers niet helemaal vastzetten.
Onderste draagarm en de asstomp monteren.
Dan het subframe afsteunen en met de smeernippel verwijderd, de onderste draagarm opkrikken, nu krijg je het geheel wel horizontaal.
Dan kan je de moeren van de buffers aanhalen.
De bevestigingsbouten van de bladveer zet je pas op 25 NM nadat je het subframe weer in de auto hebt gemonteerd en hij op zijn wielen staat
Het afsteunen van het subframe om het op te krikken is natuurlijk tricky, In mijn garage loopt een hele dikke I balk langs het dak en met twee palen van 4,5X 4,5 cm kon ik de kracht wel opvangen.
Syeun je niet af dan veert je draagarm nauwelijks in en krik je domweg het hele subframe op.
Mijn ervaring is met de Flavia dus mutatis mutandis voor de Fulvia, maar het komt aardig overeen
Ja, en de hoogte van die buffers, bepaalt uiteindelijk de stand van je auto, je kan dus iets te laag of te hoog uitkomen, dat is met deze methode een gokje
Anderzijds, met de Methode van Huib ben je nog niet helemaal zeker, want die buffers zakken de eerste paar honderd km behoorlijk in
De Flavia staat momenteel keurig recht.
Bert
Die veer horizontaal spannen, daar heb je wel een bonk ijzer voor nodig, en dan nog! (zie 2e foto)
Als je goed kijkt zie je da tik hem slechts aan 1 kant horizontaal had, zelfs met die vijzel draadeinden durfde ik niet verder te gaan
Maar het kan ook eenvoudiger.
Je hangt die veer op met die stalen bak en de 4 bouten, draait de bouten niet te vast aan
Uiteindelijk komen ze op 25 Nm, en daar moet je dus duidelijk ver onder bliven.
Je kiest je nieuwe buffers, die tussen de bladveer en de bovenste draagarm komen, er is een Oostenrijker die betere kwaliteit buffers verkoopt dan de dingen die standaard in de handel zijn, hij heeft ze zoals Huib stelt in verschillende lengtes, voor normaal gebruik is denk ik de beste gok de standaard lengte.
Je spant de veer aan 1 kant op met zelfgemaakte spannners, zie foto, ik had M-12 draadeinden, zou ze de volgende keer nog wat dikker nemen.
Probleem is, zoals je op de foto ziet, dat de uiteinden van de veer toch nog doorbuigen, maar je krijgt de buffers met wat moeite toch wel tussen de veer en de bovenste draagarm. Moeren van de buffers niet helemaal vastzetten.
Onderste draagarm en de asstomp monteren.
Dan het subframe afsteunen en met de smeernippel verwijderd, de onderste draagarm opkrikken, nu krijg je het geheel wel horizontaal.
Dan kan je de moeren van de buffers aanhalen.
De bevestigingsbouten van de bladveer zet je pas op 25 NM nadat je het subframe weer in de auto hebt gemonteerd en hij op zijn wielen staat
Het afsteunen van het subframe om het op te krikken is natuurlijk tricky, In mijn garage loopt een hele dikke I balk langs het dak en met twee palen van 4,5X 4,5 cm kon ik de kracht wel opvangen.
Syeun je niet af dan veert je draagarm nauwelijks in en krik je domweg het hele subframe op.
Mijn ervaring is met de Flavia dus mutatis mutandis voor de Fulvia, maar het komt aardig overeen
Ja, en de hoogte van die buffers, bepaalt uiteindelijk de stand van je auto, je kan dus iets te laag of te hoog uitkomen, dat is met deze methode een gokje
Anderzijds, met de Methode van Huib ben je nog niet helemaal zeker, want die buffers zakken de eerste paar honderd km behoorlijk in
De Flavia staat momenteel keurig recht.
Bert
- Attachments
-
- bladveer spannen.jpg (122.39 KiB) Viewed 1072 times
-
- flavia subframe e2-lr.jpg (121.79 KiB) Viewed 1072 times
-
bobrockland71
- Posts: 174
- Joined: 19 Oct 2012, 17:30
Re: Monteren nieuwe voorveer
Huib en Bert
Dank voor de antwoorden! Is dus toch een heel stuk ingewikkelder dan ik dacht, ik heb nog wel wat vragen maar zal eerst eens die tool gaan maken. Dat vind ik eigenlijk ook leuk aan dat restaureren: de tools erbij zoeken en fabrieken.
groet en nogmaals dank!
Bob
Dank voor de antwoorden! Is dus toch een heel stuk ingewikkelder dan ik dacht, ik heb nog wel wat vragen maar zal eerst eens die tool gaan maken. Dat vind ik eigenlijk ook leuk aan dat restaureren: de tools erbij zoeken en fabrieken.
groet en nogmaals dank!
Bob
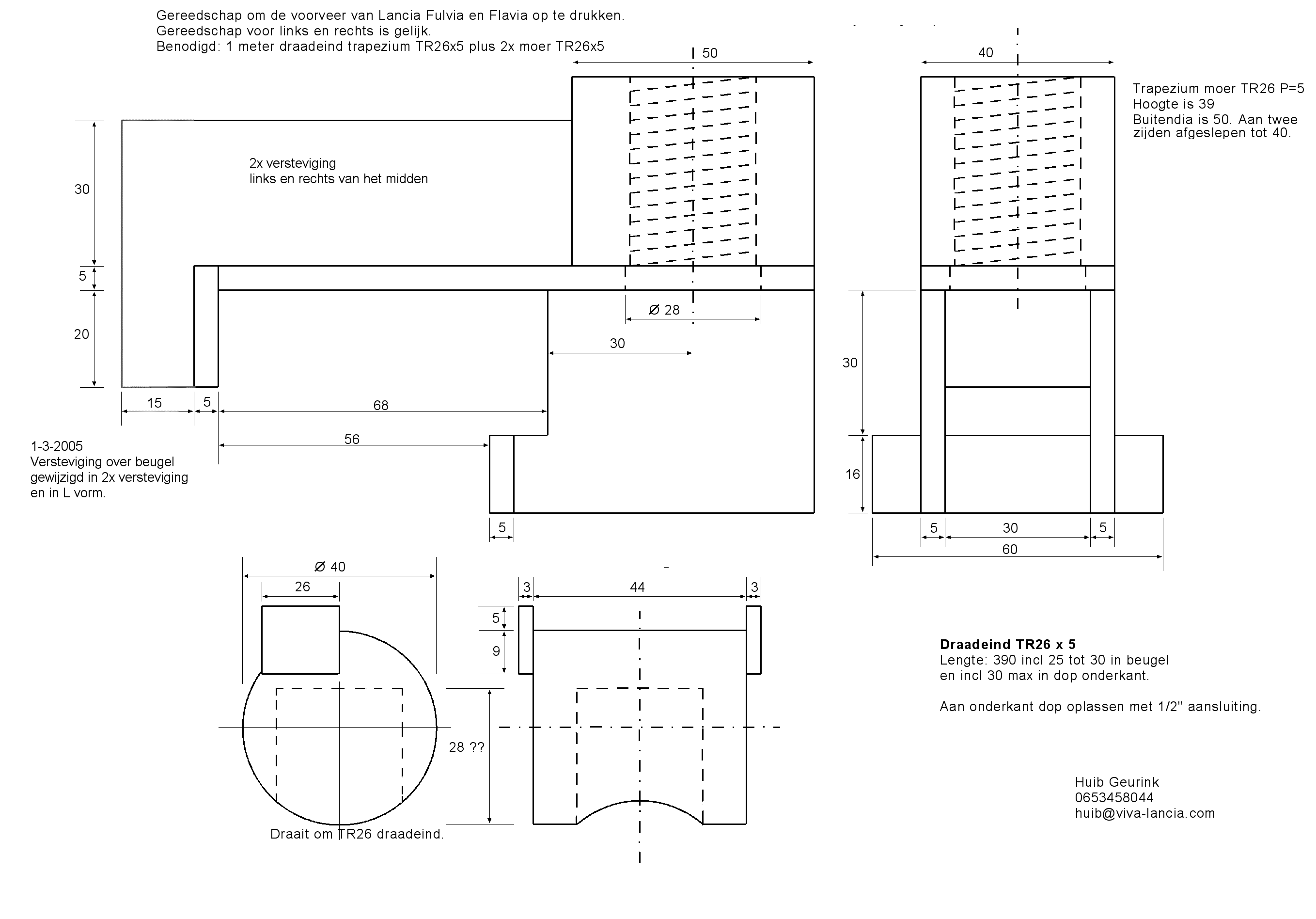
Gereedschap veer
Zie plaatjes.
Zeker geen draadeind met gewone schroefdraad gebruiken maar trapezium draad zoals ook bij bankschroeven wordt gebruikt.
Zeker geen draadeind met gewone schroefdraad gebruiken maar trapezium draad zoals ook bij bankschroeven wordt gebruikt.
- Attachments
-
- tekening-tool-veer.gif (69.06 KiB) Viewed 1072 times
-
- foto-tool-veer.jpg (99.12 KiB) Viewed 1072 times
-
Bert Ewalds
- Posts: 247
- Joined: 22 Dec 2008, 00:13
Re: Gereedschap veer
Groot gelijk huib!
Bob, als je toch gereedschap gaat maken, ga dan voor die balk dwars over.
Twee gaten bovenin waarbij je debevestigingsbouten van het subframe als pasbouten gebruikt, geen kracht op zetten
Dan met vijzel draadeinden de klemmen maken.
Let op, als je de veer op de uiteinden pakt heb je weinig plaats, zodra je die buffers gaat monteren, die vierkante buis die ik gebruikte is te dik
Bob, als je toch gereedschap gaat maken, ga dan voor die balk dwars over.
Twee gaten bovenin waarbij je debevestigingsbouten van het subframe als pasbouten gebruikt, geen kracht op zetten
Dan met vijzel draadeinden de klemmen maken.
Let op, als je de veer op de uiteinden pakt heb je weinig plaats, zodra je die buffers gaat monteren, die vierkante buis die ik gebruikte is te dik
-
bobrockland71
- Posts: 174
- Joined: 19 Oct 2012, 17:30
Re: Gereedschap veer
Zo Huib je maakt het wel heel makkelijk 
Bert die van Huib is toch slimmer want die kan ik ook gebruiken als het subframe in de auto zit, bijvoorbeeld voor mijn Berlina?
Mooi heb ik van het weekend wat te doen!
Bert die van Huib is toch slimmer want die kan ik ook gebruiken als het subframe in de auto zit, bijvoorbeeld voor mijn Berlina?
Mooi heb ik van het weekend wat te doen!
Re: Gereedschap veer
Dat was voor mij toen ook de overweging om het zo te doen.
De balk over het subframe is een mooi stuk gereedschap maar je moet elke keer het subframe droppen.
Je kunt ze met de luchttol omhoog draaien. Ook naar beneden trouwens maar dan moet je niet je vinger onder de tol houden want hij komt als een raket naar beneden.
De balk over het subframe is een mooi stuk gereedschap maar je moet elke keer het subframe droppen.
Je kunt ze met de luchttol omhoog draaien. Ook naar beneden trouwens maar dan moet je niet je vinger onder de tol houden want hij komt als een raket naar beneden.
-
Bert Ewalds
- Posts: 247
- Joined: 22 Dec 2008, 00:13
Re: Gereedschap veer
Ja, dat ziet er mooi uit Huib !
En inderdaad, het kan met het subframe ingebouwd, Hein Reedijk had daar laatst ook een oplossing voor, staat ook nog ergens op dit forum.
Ik neem aan dat die "Haak" op het subframe rust tussen de torens.
Lukt dat ook met de aandrijfassen nog gemonteerd?
Dan kan je hem ook gebruiken om de fuseekogels of stofrubbers te wisselen
Bert
En inderdaad, het kan met het subframe ingebouwd, Hein Reedijk had daar laatst ook een oplossing voor, staat ook nog ergens op dit forum.
Ik neem aan dat die "Haak" op het subframe rust tussen de torens.
Lukt dat ook met de aandrijfassen nog gemonteerd?
Dan kan je hem ook gebruiken om de fuseekogels of stofrubbers te wisselen
Bert
Re: Gereedschap veer
Hij past precies naast de aandrijfas. Wij gebruiken ze inderdaad ook om fuseekogels en stofhoesjes te vervangen. Op dit moment zijn ze zelfs in gebruik voor werk aan de remklauwen. Om de retractie te meten moet ik de slangen afklemmen en dat gaat een stuk beter als je de veer wat opdrukt.
Als je je subframe aan het opbouwen bent zoals Bob nu, kan het voorkomen dat ze net een mm verkeerd staan om de aandrijfas te monteren. In die gevallen monteer je eerst de draagarmen, fusees, schokbrekers e.d. en laat je hem zakken om de aandrijfas te monteren. Moet de boel weer omhoog, dan plaats je het gereedschap opnieuw maar dan net naast de as.
Ze zijn al ruim tien jaar intensief in gebruik en fungeren nog prima. De "oortjes" die op de rol gelast zijn gaan er wel eens af. Dat zou voor verbetering vatbaar zijn.
De beugel is van 5mm dik staal. Als je las apparaat daar niet 100% voor geschikt is en / of je ook geen ervaring hebt met lassen van 5 mm dikke plaat dan zou ik ze wegbrengen naar iemand die wel de spullen en de ervaring heeft. Dat heb ik tenminste gedaan. Desondanks brak van de eerste versie toch de lip die achter het subframe gaat af. Ik heb er toen de L vormige verstevigingen op gemaakt zoals aangegeven op de tekening.
Het gebeurt een enkel keertje dat ik vergeet ze er af te halen. Als je bij de proefrit iedere straatklinker raakt, dan heb je het ding laten zitten. Het is misschien een idee om ze lichtgevend oranje te verven.
Ik heb ze indertijd berekend om ook veilig te zijn bij de veel zwaardere veer van de Flavia. Die spindel van 24 mm lijkt overdreven maar als ze een klein beetje scheef staan neemt het gewicht dat ze kunnen dragen heel snel af.
Als je je subframe aan het opbouwen bent zoals Bob nu, kan het voorkomen dat ze net een mm verkeerd staan om de aandrijfas te monteren. In die gevallen monteer je eerst de draagarmen, fusees, schokbrekers e.d. en laat je hem zakken om de aandrijfas te monteren. Moet de boel weer omhoog, dan plaats je het gereedschap opnieuw maar dan net naast de as.
Ze zijn al ruim tien jaar intensief in gebruik en fungeren nog prima. De "oortjes" die op de rol gelast zijn gaan er wel eens af. Dat zou voor verbetering vatbaar zijn.
De beugel is van 5mm dik staal. Als je las apparaat daar niet 100% voor geschikt is en / of je ook geen ervaring hebt met lassen van 5 mm dikke plaat dan zou ik ze wegbrengen naar iemand die wel de spullen en de ervaring heeft. Dat heb ik tenminste gedaan. Desondanks brak van de eerste versie toch de lip die achter het subframe gaat af. Ik heb er toen de L vormige verstevigingen op gemaakt zoals aangegeven op de tekening.
Het gebeurt een enkel keertje dat ik vergeet ze er af te halen. Als je bij de proefrit iedere straatklinker raakt, dan heb je het ding laten zitten. Het is misschien een idee om ze lichtgevend oranje te verven.
Ik heb ze indertijd berekend om ook veilig te zijn bij de veel zwaardere veer van de Flavia. Die spindel van 24 mm lijkt overdreven maar als ze een klein beetje scheef staan neemt het gewicht dat ze kunnen dragen heel snel af.
